J941H電動截止閥
產品概況
產品型號:J941H
公稱通徑:DN50~300mm
公稱壓力:PN1.6~16.0MPa
適用溫度:≤540℃
主要材質:碳鋼、不銹鋼等
設計標準:GB12235
結構長度:GB12221
法蘭尺寸:GB9113 JB79 HG20592-20635
壓力-溫度:GB9131 JB/T74 HG20604
試驗-檢驗:GB/T13927 JB/T9092
J941H電動截止閥基本信息
百鋼閥門集團生產銷售的J941H電動截止閥的啟閉件是塞形的閥瓣,密封面呈平面或錐面,閥瓣沿流體的中心線作直線運動。閥桿的運動形式,有升降桿式(閥桿升降,手輪不升降),也有升降旋轉桿式(手輪與閥桿一起旋轉升降,螺母設在閥體上)。電動截止閥只適用于全開和全關,不允許作調節和節流。
J941H電動截止閥標準參數
| 設計標準 | GB12235 |
| 結構長度 | GB12221 |
| 法蘭尺寸 | GB9113 JB79 HG20592-20635 |
| 壓力-溫度 | GB9131 JB/T74 HG20604 |
| 試驗-檢驗 | GB/T13927 JB/T9092 |
J941H電動截止閥閥門特點
1、結構緊湊、設計合理,閥門剛性好,通道流暢,流阻系數小。
2、密封面采用不銹鋼和硬質合金,使用壽命長。
3、采用柔性石墨填料、密封可靠、操作輕便靈活。
4、驅動方式分手動、電動、氣動、齒輪傳功,結構型式:彈性楔式單閘板、剛性楔式單閘板和雙閘板型式。
5、廣泛適用于石油化工,火力發電廠等油品、水蒸汽管路上作接通或截斷管路中介質的啟閉裝置。
J941H電動截止閥適應工況
電動截止閥閥瓣、閥座密封面采用鐵基合金堆焊或司太立(Stellite)鈷基硬質合金堆焊而成,耐磨、耐高溫、耐腐蝕、抗擦傷性能好,使用壽命長,適用于公稱壓力PN1.6~16MPa,工作溫度-29~550℃的石油、化工、制藥、化肥、電力行業等各種工況的管路上,切斷或接通管路介質。驅動方式有手動、齒輪傳動、電動、氣動等。
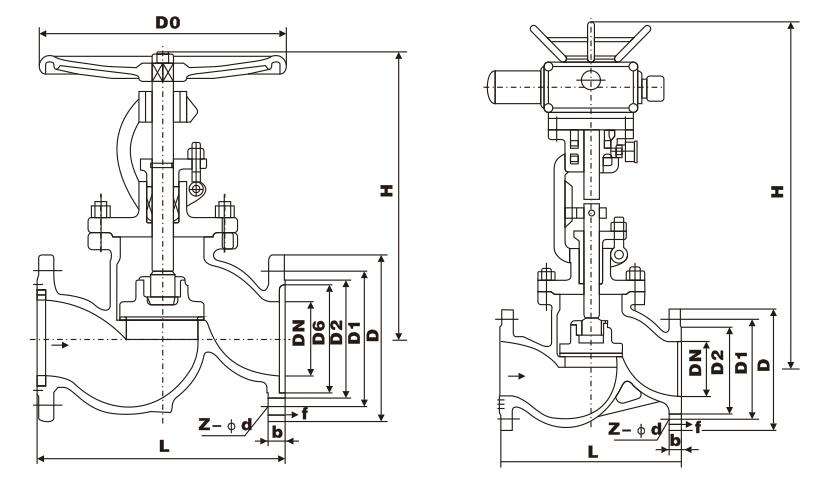
J941H電動截止閥主要外形尺寸

|
公稱壓力 PN(MPa) |
公稱通徑 DN(mm) |
標準值 | 參考值 | ||||||||||
| L | D | D1 | n2 | D6 | b | f | f1 | Z-φd | L1 | H | 重量(kg) | ||
| 1.6 | 50 | 230 | 160 | 125 | 100 |
|
16 | 3 |
|
4-φ18 | 590 | 645 | 48 |
| 65 | 290 | 180 | 145 | 120 |
|
18 | 3 |
|
4-φ18 | 590 | 690 | 60 | |
| 80 | 310 | 195 | 160 | 135 |
|
20 | 3 |
|
8-φ18 | 590 | 715 | 65 | |
| 100 | 350 | 215 | 180 | 155 |
|
20 | 3 |
|
8-φ18 | 590 | 770 | 71 | |
| 125 | 400 | 254 | 210 | 185 |
|
22 | 3 |
|
8-φ18 | 590 | 780 | 119 | |
| 150 | 480 | 280 | 240 | 210 |
|
24 | 3 |
|
8-φ23 | 590 | 810 | 210 | |
| 200 | 600 | 335 | 295 | 265 |
|
26 | 3 |
|
12-φ23 | 810 | 967 | 320 | |
| 250 | 622 | 405 | 355 | 320 |
|
30 | 3 |
|
12-φ25 | 810 | 1143 | 550 | |
| 300 | 698 | 460 | 410 | 375 |
|
30 | 4 |
|
12-φ25 | 830 | 1292 | 785 | |
| 2.5 | 50 | 230 | 160 | 125 | 100 |
|
20 | 3 |
|
4-φ18 | 590 | 645 | 50 |
| 65 | 290 | 180 | 145 | 120 |
|
22 | 3 |
|
8-φ18 | 590 | 690 | 65 | |
| 80 | 310 | 195 | 160 | 135 |
|
22 | 3 |
|
8-φ18 | 590 | 715 | 67 | |
| 100 | 350 | 230 | 190 | 160 |
|
24 | 3 |
|
8-φ23 | 590 | 770 | 73 | |
| 125 | 400 | 270 | 220 | 188 |
|
28 | 3 |
|
8-φ25 | 590 | 780 | 127 | |
| 150 | 480 | 300 | 250 | 218 |
|
30 | 3 |
|
8-φ25 | 810 | 810 | 215 | |
| 200 | 600 | 360 | 310 | 278 |
|
34 | 3 |
|
12-φ25 | 810 | 967 | 322 | |
| 250 | 622 | 425 | 370 | 332 |
|
36 | 3 |
|
12-φ30 | 830 | 1143 | 585 | |
| 300 | 698 | 485 | 430 | 390 |
|
40 | 4 |
|
16-φ30 | 830 | 1292 | 795 | |
| 4.0 | 50 | 230 | 160 | 125 | 100 | 88 | 20 | 3 | 4 | 4-φ18 | 590 | 645 | 61 |
| 65 | 290 | 180 | 145 | 120 | 110 | 22 | 3 | 4 | 8-φ18 | 590 | 690 | 75 | |
| 80 | 310 | 195 | 160 | 135 | 121 | 22 | 3 | 4 | 8-φ18 | 590 | 715 | 84 | |
| 100 | 350 | 230 | 190 | 160 | 150 | 24 | 3 | 4.5 | 8-φ23 | 590 | 770 | 101 | |
| 125 | 400 | 270 | 220 | 188 | 176 | 28 | 3 | 4.5 | 8-φ25 | 810 | 782 | 207 | |
| 150 | 480 | 300 | 250 | 218 | 204 | 30 | 3 | 4.5 | 8-φ25 | 810 | 875 | 226 | |
| 200 | 600 | 375 | 320 | 282 | 260 | 38 | 3 | 4.5 | 12-φ30 | 810 | 1160 | 399 | |
| 6.4 | 50 | 300 | 175 | 135 | 105 | 88 | 26 | 3 | 4 | 4-φ23 | 590 | 710 | 64 |
| 65 | 340 | 200 | 160 | 130 | 110 | 28 | 3 | 4 | 8-φ23 | 590 | 750 | 77 | |
| 80 | 380 | 210 | 170 | 140 | 121 | 30 | 3 | 4 | 8-φ23 | 590 | 785 | 86 | |
| 100 | 430 | 250 | 200 | 168 | 150 | 32 | 3 | 4.5 | 8-φ25 | 810 | 837 | 171 | |
| 125 | 500 | 295 | 240 | 202 | 176 | 36 | 3 | 4.5 | 8-φ30 | 810 | 1031 | 243 | |
| 150 | 550 | 340 | 280 | 240 | 204 | 38 | 3 | 4.5 | 8-φ34 | 830 | 1066 | 296 | |
| 200 | 650 | 405 | 345 | 300 | 260 | 44 | 3 | 4.5 | 12-φ34 | 830 | 1213 | 420 | |
| 10.0 | 50 | 300 | 195 | 145 | 112 | 88 | 28 | 3 | 4 | 4-φ25 | 590 | 714 | 81 |
| 65 | 340 | 220 | 170 | 138 | 110 | 32 | 3 | 4 | 8-φ25 | 590 | 734 | 102 | |
| 80 | 380 | 230 | 180 | 148 | 121 | 34 | 3 | 4 | 8-φ30 | 810 | 847 | 175 | |
| 100 | 430 | 265 | 210 | 172 | 150 | 38 | 3 | 4.5 | 8-φ30 | 810 | 950 | 194 | |
| 125 | 500 | 310 | 250 | 210 | 176 | 42 | 3 | 4.5 | 8-φ34 | 830 | 1141 | 285 | |
| 150 | 550 | 350 | 290 | 250 | 204 | 46 | 3 | 4.5 | 12-φ34 | 830 | 1240 | 450 | |
| 200 | 650 | 430 | 360 | 312 | 260 | 54 | 3 | 4.5 | 12-φ4l | 830 | 1425 | 850 | |
| 16.0 | 50 | 300 | 215 | 165 | 132 | 88 | 36 | 3 | 4 | 8-φ25 | 590 | 562 | 92 |
| 65 | 340 | 245 | 190 | 152 | 110 | 44 | 3 | 4 | 8-φ30 | 810 | 743 | 165 | |
| 80 | 380 | 260 | 205 | 168 | 121 | 46 | 3 | 4 | 8-φ30 | 830 | 820 | 216 | |
| 100 | 430 | 300 | 240 | 200 | 150 | 48 | 3 | 4.5 | 8-φ34 | 830 | 935 | 238 | |
溫馨提示:
本文中所有文字、數據、圖片均只適用于參考。需要查看更多的J941H電動截止閥性能參數、結構尺寸參數、價格等詳情,或要求高質量印刷樣本,請聯系我們。