VQ947H電動V型球閥
產品概況
產品型號: VQ947H
公稱通徑:DN25~300mm
公稱壓力:PN1.6~4.0MPa
主體材質:WCB、304、316
連接方式:對夾式、法蘭式
法蘭標準:GB、ANSI、DIN、JIS
電動執行器:開關型、調節型、防爆型
設計制造:GB/T12237/1989、ASME B16.34 、API608
結構長度:GB/T12221、ASME B16.10
連接尺寸:GB 9113.1、ASME B16.5
檢驗試驗:GB/T13927-1992、API 598,API6D
VQ947H/VQ977H電動V型球閥-產品說明
百鋼閥門集團生產銷售的VQ947H電動V型球閥采用圓柱型彈簧預載的帶補償性可動金屬閥座結構,密封性能可靠。球芯與閥座不會產生卡阻或脫離,使用壽命長。球芯上的V形切口與金屬閥座之間具有剪切作用,特別適用于控制高粘度,含纖維、固體顆粒及漿料等介質。結構制造紙工業的紙漿顯得尤為優越。閥門的流通能力大、壓力損失小、且介質不會沉積在閥體中腔,閥門不僅具有近似等有分比的流量特性、可調范圍大,可調比為100:1,還具有精確調節與可靠定位的功能。
VQ947H/VQ977H電動V型球閥-主要零件材料
|
零件名稱 |
材質 |
|
|
閥體、閥蓋 |
WCB |
CF 8 |
|
密封圈 |
2Cr13+氮化 |
304+氮化 |
|
球體 |
2Cr13+硬格 |
304+硬格 |
|
閥座、閥桿 |
2Cr13 |
304 |
|
墊片 |
柔性石墨+不銹鋼 |
柔性石墨+不銹鋼 |
|
雙頭螺柱 |
35CrMoA |
1Cr18Ni9Ti |
VQ947H/VQ977H電動V型球閥-主要性能規范
|
公稱壓力 |
試驗壓力(MPa) |
適用介質 |
適用溫度 |
|
|
殼體試驗 |
密封試驗 |
|||
|
1.6 |
2.4 |
1.76 |
水、油、氣及高粘度,含纖維、固體顆粒等介質 |
-28℃~≤550℃ |
|
2.5 |
3.75 |
2.75 |
||
|
4.0 |
6.0 |
4.4 |
||
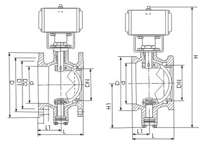
VQ947H/VQ977H電動V型球閥-主要外形尺寸

|
公稱壓力 |
公稱通徑 |
尺寸(mm) |
||||||||
|
(mm) |
(in) |
W |
L |
W1 |
L1 |
d |
d1 |
H1 |
H |
|
|
PN1.6MPa |
25 |
- |
50 |
- |
25 |
- |
64 |
38 |
57 |
200 |
|
40 |
- |
60 |
- |
25 |
- |
82 |
49 |
63 |
205 |
|
|
50 |
- |
75 |
124 |
32 |
62 |
100 |
60 |
92 |
225 |
|
|
65 |
- |
80 |
145 |
38 |
72.5 |
120 |
75 |
100 |
235 |
|
|
80 |
- |
100 |
165 |
45 |
82.5 |
131 |
89 |
108 |
260 |
|
|
100 |
- |
115 |
194 |
50 |
97 |
158 |
113 |
117 |
270 |
|
|
125 |
- |
135 |
210 |
55 |
105 |
180 |
140 |
140 |
320 |
|
|
150 |
- |
160 |
229 |
65 |
114.5 |
216 |
164 |
177 |
340 |
|
|
200 |
- |
200 |
243 |
80 |
121.5 |
268 |
205 |
200 |
390 |
|
|
250 |
- |
240 |
297 |
90 |
148.5 |
326 |
259 |
252 |
420 |
|
|
300 |
- |
- |
338 |
- |
169 |
- |
300 |
270 |
510 |
|
|
PN2.5MPa |
25 |
- |
50 |
- |
25 |
- |
64 |
38 |
57 |
200 |
|
40 |
- |
60 |
- |
25 |
- |
82 |
49 |
63 |
205 |
|
|
50 |
- |
75 |
124 |
32 |
62 |
100 |
60 |
92 |
225 |
|
|
65 |
- |
85 |
145 |
38 |
72.5 |
120 |
75 |
100 |
235 |
|
|
80 |
- |
100 |
165 |
45 |
82.5 |
131 |
89 |
108 |
260 |
|
|
100 |
- |
115 |
194 |
50 |
97 |
158 |
113 |
117 |
270 |
|
|
125 |
- |
135 |
210 |
55 |
105 |
180 |
140 |
140 |
320 |
|
|
150 |
- |
160 |
229 |
65 |
114.5 |
216 |
164 |
177 |
340 |
|
|
200 |
- |
200 |
243 |
80 |
121.5 |
268 |
205 |
200 |
390 |
|
|
250 |
- |
240 |
297 |
92 |
148.5 |
326 |
259 |
252 |
420 |
|
|
300 |
- |
- |
338 |
- |
169 |
- |
300 |
270 |
510 |
|
|
ClASS150 |
25 |
- |
50 |
- |
25 |
- |
64 |
38 |
57 |
200 |
|
40 |
11/2 |
65 |
- |
25 |
- |
82 |
49 |
63 |
205 |
|
|
50 |
2 |
75 |
124 |
32 |
62 |
100 |
60 |
92 |
225 |
|
|
65 |
21/2 |
85 |
145 |
38 |
72.5 |
120 |
75 |
100 |
235 |
|
|
80 |
3 |
100 |
165 |
45 |
82.5 |
131 |
89 |
108 |
260 |
|
|
100 |
4 |
115 |
194 |
50 |
97 |
158 |
113 |
117 |
270 |
|
|
125 |
5 |
135 |
210 |
55 |
105 |
180 |
140 |
140 |
320 |
|
|
150 |
6 |
160 |
229 |
65 |
114.5 |
216 |
164 |
177 |
340 |
|
|
200 |
8 |
200 |
243 |
80 |
121.5 |
268 |
205 |
200 |
390 |
|
|
250 |
10 |
240 |
297 |
92 |
148.5 |
326 |
259 |
252 |
420 |
|
|
300 |
12 |
- |
338 |
- |
169 |
- |
|
|
|
|
溫馨提示:
本文中所有文字、數據、圖片均只適用于參考。需要查看更多的VQ947H電動V型球閥性能參數、結構尺寸參數、價格等詳情,或要求高質量印刷樣本,請聯系我們。